En venta
2 habs. 1 bañ. 120m2
Si buscas tranquilidad, belleza natural y una calidad de vida excepcional, esta propiedad en Andratx, zona SArrac, es para ti. Rodeada de naturaleza, es ideal para quienes desean vivir en un lugar tranquilo, pero con fcil acceso a todos los servicios y a las hermosas playas de la zona.
Caractersticas destacadas:
- Parcela de 281 m con jardn privado, perfecto para disfrutar al aire libre. Adems, tiene espacio para construir una piscina.
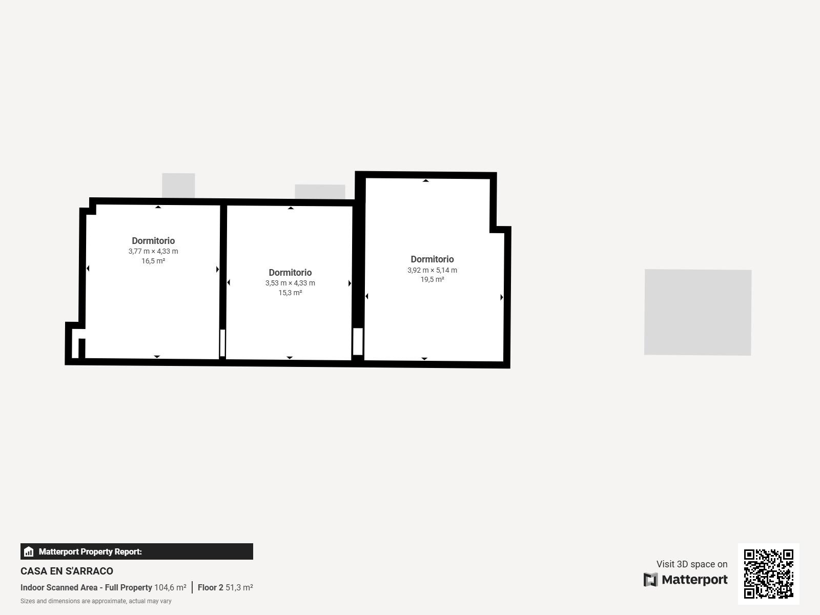
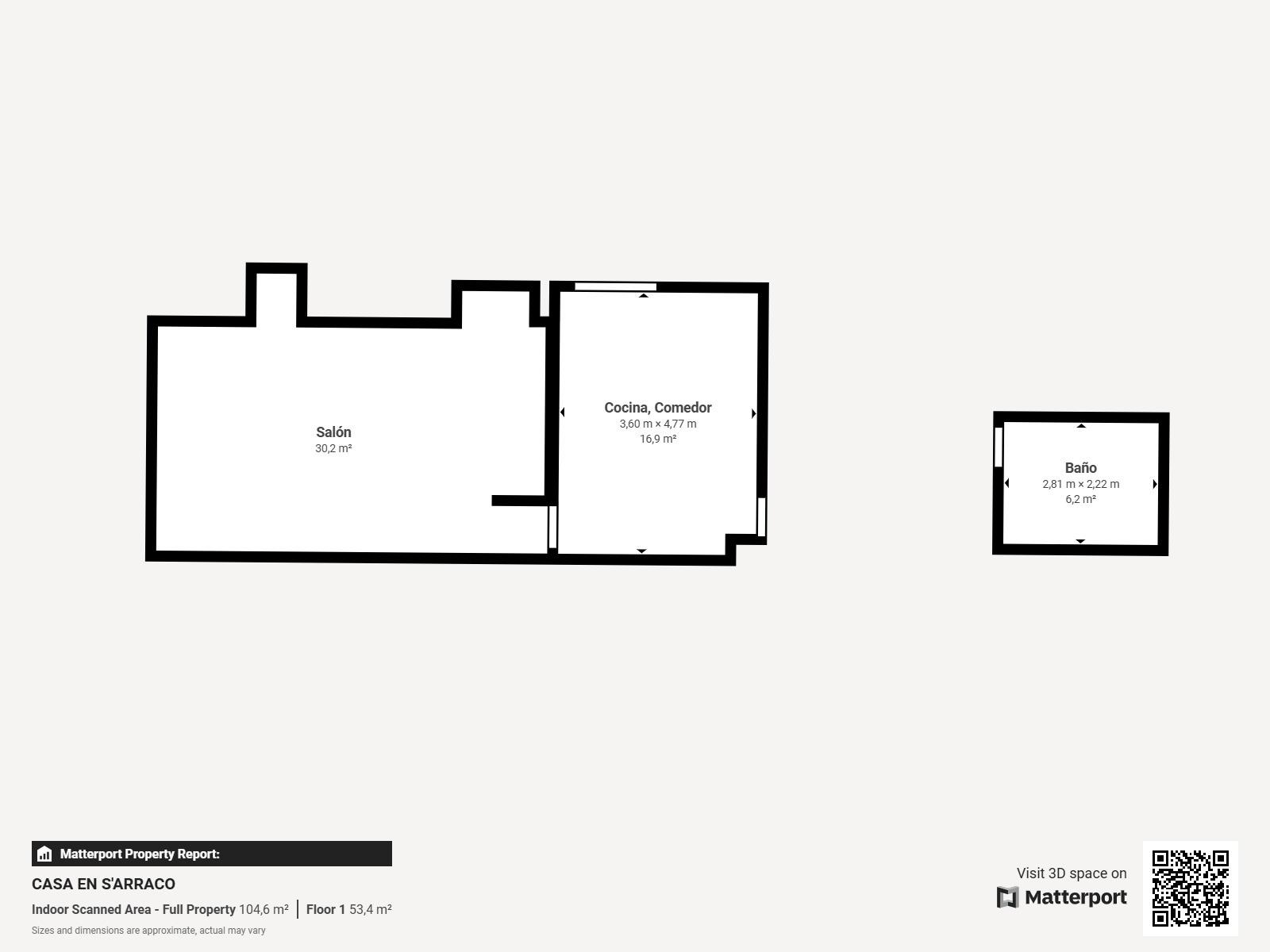
- Dos habitaciones dobles, una simple y un bao completo.
- Opcin de ampliacin: Esta vivienda te permite realizar una pequea ampliacin para adaptarla a tus necesidades.
No pierdas la oportunidad de vivir en un entorno idlico. Contctanos y descubre tu prximo hogar!

Datos

Referencia
P1NA69
Tipo
Casas o chalets
Ciudad
Andratx
Zona
S Arracó
Planta
0
CP
07159

Características

Habitaciones
2
Baños
1
Antigüedad
1890
Superficie útil
105m2
Superficie construida
120m2
Superficie parcela
281m2
Estado
Reformado
Orientación
Este::Oeste

Extras

Trastero
Califcación energética Aportado
Consumo kW h/m2 Año
Emisiones Kg CO2/m2 Año
A
Más eficiente
B
C
D
E
234
60
F
G
Menos eficiente
Contacta con el agente