En venta
4 habs. 2 bañ. 169m2
? MURO ? FINCA RSTICA CON LICENCIA Y PROYECTO CERCA DE LA ALBUFERA
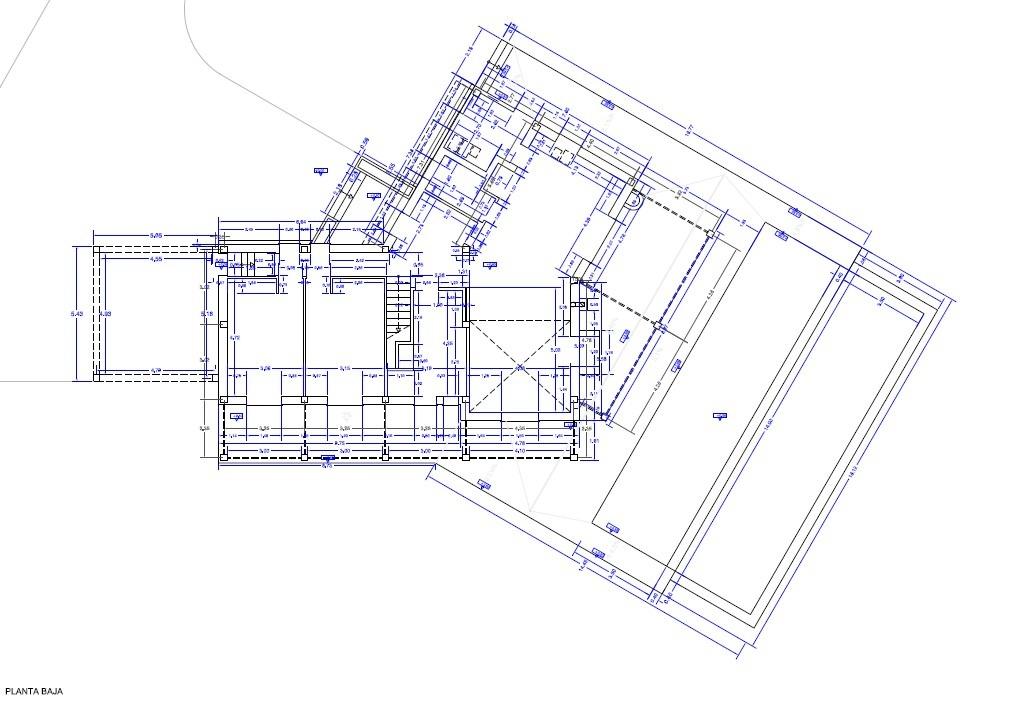
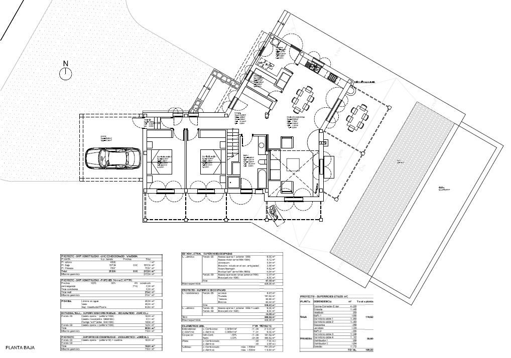
Ubicada entre el Cam Vell de Muro y a escasos minutos del Parque Natural de s?Albufera, esta espectacular parcela rstica de 14.202 m ofrece la oportunidad de construir la casa de tus sueos en un entorno natural privilegiado, con licencia y proyecto bsico aprobados para una vivienda unifamiliar de dos plantas.
? PROYECTO DE VIVIENDA UNIFAMILIAR
El diseo proyectado incluye:
Planta baja: recibidor, saln con cocina-comedor de concepto abierto, 2 dormitorios dobles, 1 bao, lavadero, despensa, vestbulo conector hacia el porche, garaje, amplia terraza y una piscina de diseo rectangular integrada en el espacio exterior.
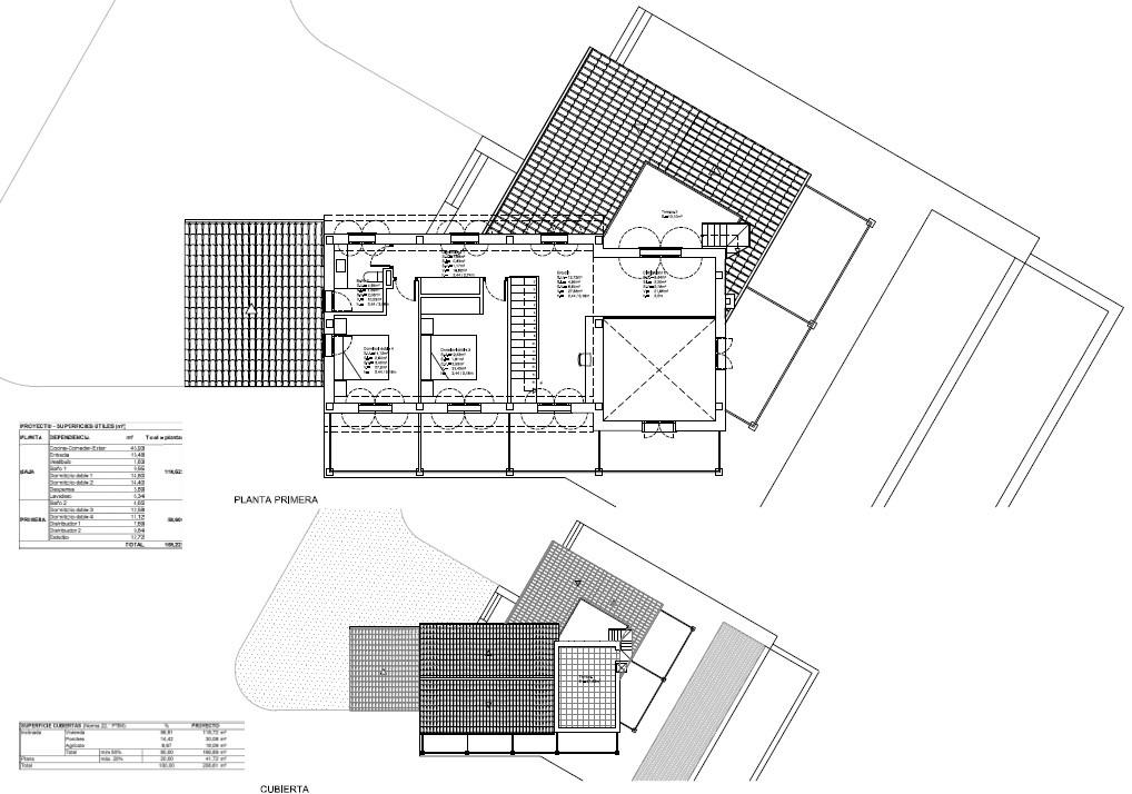
Planta superior: 2 dormitorios dobles, un estudio, 1 bao completo y acceso a una terraza solrium con vistas despejadas a la montaa.
? INFRAESTRUCTURA Y SERVICIOS
Agua de pozo propia.
Instalacin prevista para placas solares (energa autosuficiente).
Posibilidad de conexin a red elctrica.
Orientacin sudoeste, ideal para aprovechar la luz solar durante todo el da.
Entorno tranquilo y natural, perfecto para quienes buscan privacidad y contacto con la naturaleza.
Este inmueble ha sido certificado por ABSI (Asociacin Balear de Servicios Inmobiliarios) lo que significa que la agencia comercializadora ha supervisado la documentacin necesaria para la compraventa y que el inmueble forma parte de la bolsa de propiedades en multiexclusiva ABSI.
Ref. 1242

Datos

Referencia
1242
Tipo
Fincas y solares
Ciudad
Muro
Zona
Muro
Planta
0
CP
07440

Características

Habitaciones
4
Baños
2
Superficie útil
160m2
Superficie construida
169m2
Superficie parcela
14202m2
Estado
En proyecto

Extras

Califcación energética En trámites
Consumo kW h/m2 Año
Emisiones Kg CO2/m2 Año
A
Más eficiente
B
C
D
E
F
G
Menos eficiente
Contacta con el agente