En venta
3 habs. 2 bañ. 117m2
Ref. 100SG126
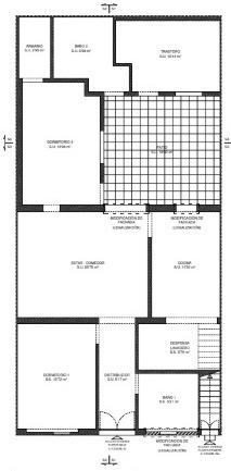
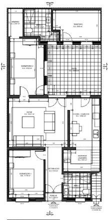
Presentamos esta fantstica planta baja ubicada en pleno centro de Manacor, una zona tranquila y bien comunicada, cercana a todos los servicios.
La propiedad se encuentra en fase final de reforma, con finalizacin prevista en un mes, y ofrece la posibilidad de personalizar los acabados segn las preferencias del comprador.
Dispone de tres dormitorios dobles, uno de ellos con vestidor, y los otros dos con armarios empotrados, ofreciendo espacios amplios y funcionales.
Cuenta con dos baos completos: uno con ducha y ventana exterior, y otro con baera, ambos diseados con materiales de primera calidad.
La cocina con despensa independiente se integra con un amplio saln comedor muy luminoso, ideal para disfrutar en familia. Adems, incluye un patio interior privado, que aporta ventilacin y luz natural a las estancias.
Entre sus caractersticas tcnicas destacan las preinstalaciones para aire acondicionado y radiadores, ventanas de climalit y suelo de baldosa cermica, combinando eficiencia y confort.
Importante: hasta que no se terminen las obras no es posible realizar la divisin horizontal. Con el final de obra se efectuar la divisin horizontal y se tramitar la cdula de habitabilidad para entregar la vivienda al comprador con todos los trmites completados y en regla.
Una excelente oportunidad para quienes buscan una vivienda moderna y lista para estrenar en el corazn de Manacor.
Nota: algunas imgenes han sido generadas mediante tecnologa de inteligencia artificial con fines ilustrativos, y pueden no reflejar fielmente la situacin actual del inmueble.

Datos

Referencia
100SG126
Tipo
Pisos
Ciudad
Manacor
Zona
Manacor Centro
Planta
0
CP
07500

Características

Habitaciones
3
Baños
2
Antigüedad
1900
Superficie útil
115m2
Superficie construida
117m2
Superficie parcela
133m2
Estado
En proyecto

Extras

Califcación energética En trámites
Consumo kW h/m2 Año
Emisiones Kg CO2/m2 Año
A
Más eficiente
B
C
D
E
F
G
Menos eficiente
Contacta con el agente