En venta
3 habs. 5 bañ. 250m2
Te invito a descubrir esta encantadora oportunidad en pleno centro de Porreres: una vivienda unifamiliar con estructura ya ejecutada, pensada para convertirse en un hogar moderno, luminoso y funcional, a pocos minutos de las calas ms hermosas del sur de Mallorca.
Ubicada en una calle tranquila del ncleo histrico, esta propiedad ofrece la posibilidad de dar vida a un proyecto acogedor y elegante, rodeado de calma, luz natural y espacios exteriores donde disfrutar del ritmo pausado del Mediterrneo.
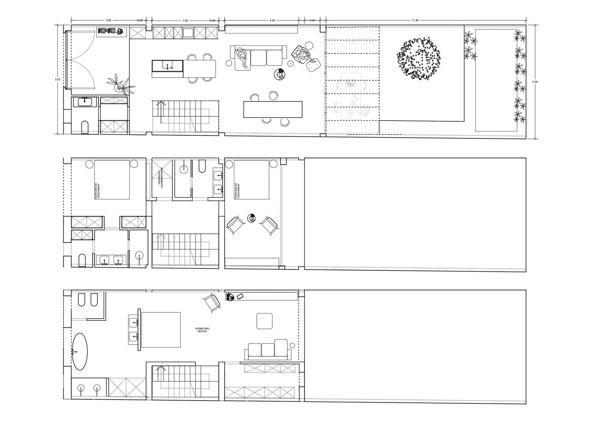
Distribucin y superficie.
La propuesta contempla una vivienda de aproximadamente 216 m construidos, distribuidos en tres plantas de 72 m cada una, ms un patio privado posterior de unos 48 m con zona ajardinada y piscina.
Aunque la normativa permite edificar hasta 16 metros de fondo en planta baja, el diseo ha priorizado un amplio espacio exterior que aporta calidad de vida y conexin directa con el aire libre. En las plantas superiores, el fondo edificable se limita a 12 metros segn normativa.
Planta baja (72 m construidos):
Espacio abierto y acogedor que integra cocina con isla, comedor y saln con salida directa al patio. Este espacio exterior ha sido concebido como una extensin natural del interior: un lugar para leer, compartir comidas al sol o refrescarse en la piscina durante los das de verano. Tambin se ha previsto un aseo de cortesa y zona de almacenamiento. Si se requiriese, existe la posibilidad de aadir una plaza de parking aprovechando la superficie edificable en detrimento del patio.
Primera planta (72 m):
Aqu se proyectan dos dormitorios dobles, una zona de estar o despacho, y dos baos completos (uno en suite), con estancias pensadas para combinar descanso, funcionalidad y serenidad.
Segunda planta (72 m):
Una generosa master bedroom con vestidor y bao en suite, diseada como refugio ntimo para sus propietarios.
Estado actual y posibilidades del proyecto.
La vivienda cuenta actualmente con una estructura ejecutada sobre una base de 18 metros de fondo, que deber adaptarse a los lmites edificables vigentes mediante una intervencin parcial de demolicin y reconfiguracin de volmenes. Este ajuste permite consolidar un proyecto slido, preparado para cumplir con los requisitos urbansticos actuales, y con margen de personalizacin.
El proyecto planteado es completamente abierto a modificaciones: nuestros tcnicos y colaboradores pueden adaptar la distribucin y acabados segn tus necesidades, acompandote en cada fase del proceso.
Ser necesario tramitar una licencia de obra mayor, y si bien esta an no ha sido presentada, todo el diseo actual se ha elaborado en base a criterios consensuados e informados por el rea tcnica del ayuntamiento, lo que facilita una gestin fluida y viable.
El proyecto no solo apuesta por un diseo contemporneo, sino que tambin busca rescatar elementos tradicionales que dotan a la vivienda de calidez y autenticidad. La portada original de madera con arco de piedra, los muros de mars y mampostera, as como los acabados rsticos, forman parte del alma del inmueble y pueden integrarse en la propuesta arquitectnica final. Detalles que aportan textura, historia y carcter al hogar.
El presupuesto estimado para la reforma integral, incluyendo instalaciones, acabados interiores y exteriores, ronda los 300.000??, variable segn el nivel de calidades elegido.
Porreres es uno de esos lugares que invitan a quedarse. Con su ritmo tranquilo, plazas soleadas y vida de pueblo autntica, ofrece el equilibrio perfecto entre tradicin y comodidad. Aqu encontrars servicios, escuelas, cafs y restaurantes con encanto, todo sin renunciar a la cercana del mar.
Un lugar donde construir no solo una casa, sino un verdadero hogar
Te ayudamos a convertir tus sueos en realidad..

Datos

Referencia
FP25400
Tipo
Casas o chalets
Ciudad
Porreres
Zona
Centro
Planta
0
CP
07260

Características

Habitaciones
3
Baños
4
Aseos
1
Antigüedad
2002
Superficie útil
240m2
Superficie construida
250m2
Superficie parcela
137m2
Superficie terraza
20m2
Estado
En construcción

Extras

Balcón
Garaje
Terraza
Califcación energética En trámites
Consumo kW h/m2 Año
Emisiones Kg CO2/m2 Año
A
Más eficiente
B
C
D
E
F
G
Menos eficiente
Contacta con el agente