En venta
2 habs. 1 bañ. 65m2
 
Presentamos una excelente oportunidad de adquirir una vivienda exclusiva en el corazón de Puerto de Sagunto. Este encantador piso, situado en la zona de la Plaza del Sol, ofrece una mezcla perfecta de comodidad y ubicación privilegiada. Destacado por su carácter acogedor y funcional, el inmueble cuenta con 65 metros construidos, optimizando al máximo cada espacio para satisfacer sus necesidades cotidianas.
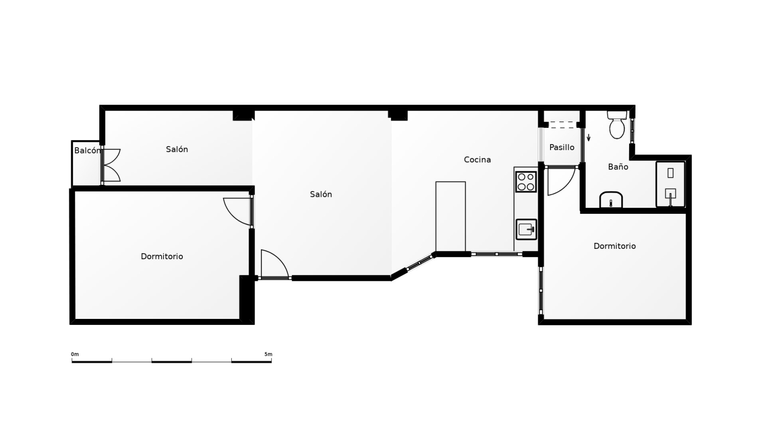
Ubicado en la segunda planta de un edificio sólido, construido en 1966, el piso revela un diseño agradable que se adapta a todas las generaciones. Al entrar, le recibirán sus dos acogedoras habitaciones, ideales para descansar después de un largo día o para ser utilizadas como oficina, proporcionando el espacio necesario para quienes trabajan desde casa. Ambos dormitorios están diseñados para maximizar el confort y la privacidad, asegurando un ambiente sereno.
La sala de estar, que conecta de manera fluida con el resto de los espacios, es perfecta para compartir momentos especiales con familia y amigos. Su distribución permite colocar el mobiliario de manera eficiente, garantizando un espacio cálido que invita a la desconexión y el disfrute. Además, desde aquí se accede a un encantador balcón, un rincón donde podrá disfrutar de una taza de café por las mañanas o relajarse al atardecer mientras contempla el entorno.
La cocina, funcional y bien aprovechada, está equipada para facilitar sus tareas diarias, proporcionando un lugar práctico para preparar sus recetas favoritas. Adyacente a la cocina, encontrará un baño diseñado con buen gusto y dotado de todo lo necesario para ofrecerle comodidad en su rutina diaria.
La vivienda dispone como anejo un trastero situado en la terraza del edificio que permite disponer de un espacio extra de almacenaje. 
Uno de los grandes atractivos de esta propiedad es su ubicación inmejorable, dentro de la vibrante zona de Centro Puerto. Este sector del Puerto de Sagunto es conocido por su diversidad de servicios y establecimientos, ofreciendo una amplia gama de tiendas, restaurantes y cafeterías a pocos pasos de la puerta de su nuevo hogar. Su proximidad a los servicios esenciales y espacios públicos asegura que todo lo que pueda necesitar esté al alcance de su mano.
La conectividad de la zona es excelente, contando con facilidades de transporte público que hacen que desplazarse por la ciudad sea sencillo y rápido. Además, la cercanía a la playa aporta un valor añadido, permitiéndole disfrutar de paseos costeros siempre que lo desee. El ambiente del vecindario es tranquilo y familiar, proporcionando una sensación de comunidad y seguridad que muy pocas áreas pueden igualar.
Este piso representa una oportunidad única para aquellos que buscan un hogar acogedor en una ubicación privilegiada. No deje pasar esta ocasión de visitar una propiedad que no solo cumple, sino que supera expectativas en cuanto a comodidad, ubicación y calidad de vida. Le invitamos a agendar una visita para descubrir por sí mismo las maravillas que este piso en el Centro Puerto tiene por ofrecerle. Convierta este espacio en su nuevo refugio y disfrute de todo lo que Puerto de Sagunto le tiene guardado.
* En nuestra agencia contamos con el distintivo de Agentes de Intermediación Inmobiliaria de la Comunitat Valenciana (Número de registro RAICV 1394) y cumplimos con todos los requisitos que debe tener un profesional del sector inmobiliario.
 
*Por mandato expreso del propietario, comercializamos este inmueble en exclusiva, lo que le garantiza el acceso a toda la información, a un servicio de calidad, un trato fácil, sencillo y sin interferencias de terceros. Si usted es agente inmobiliario y tiene un cliente para este inmueble, llámenos estaremos encantados de colaborar. 
*El precio indicado no incluye gastos ni otros conceptos. A tal efecto, se informa que al referido precio habrá que añadirle los gastos propios de la transmisión inmobiliaria, entre los que cabe enumerar los siguientes: honorarios notariales, impuesto al que se encuentre sujeta la transmisión (Impuesto sobre el Valor Añadido o Impuesto sobre Transmisiones Patrimoniales y Actos Jurídicos Documentados, según el caso), gastos de inscripción en el Registro de la Propiedad y honorarios de intermediación de la agencia inmobiliaria. 
 
*¿Qué te ofrecemos en nuestra agencia?  
- Agilizamos y hacemos más cómodo el proceso. 
- ¡Nos ocupamos de todo! Cero preocupaciones. 
- Recibe apoyo legal y fiscal durante todo el proceso. 
- Experto inmobiliario 100% a tu lado. 
- Asistencia post venta ¡Seguimos a tu lado!

Datos

Referencia
CVLCas6612
Tipo
Pisos
Ciudad
Puerto de Sagunto
Zona
Centro Puerto
Planta
02
CP
46520

Características

Habitaciones
2
Baños
1
Antigüedad
1966
Gastos de comunidad
24€/mes
IBI
117.87
Superficie útil
57m2
Superficie construida
65m2
Estado
Reformado
Carpintería exterior
Climalit/Aluminio
Orientación
Norte

Extras

Balcón
Calefacción
Califcación energética Aportado
Consumo kW h/m2 Año
Emisiones Kg CO2/m2 Año
A
Más eficiente
B
C
D
E
174.21
30.91
F
G
Menos eficiente
Contacta con el agente