0 habs. 3 bañ. 202.00m2
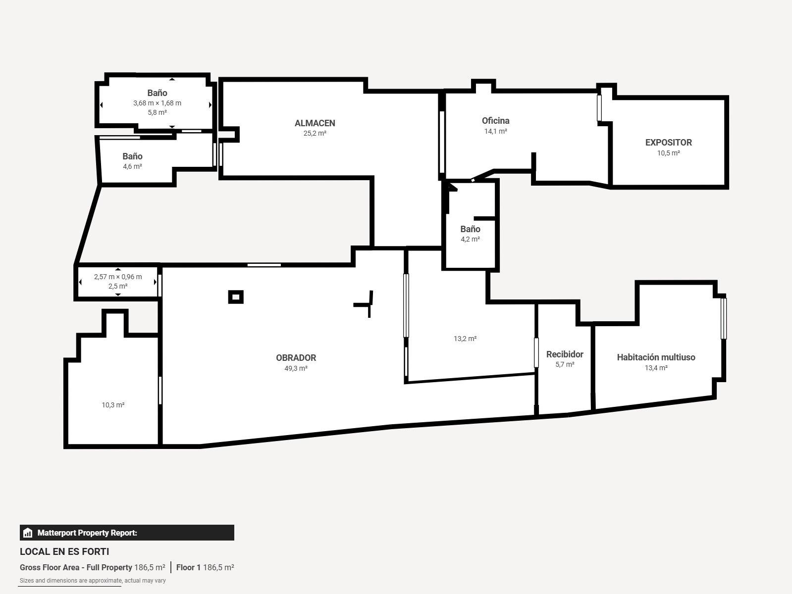
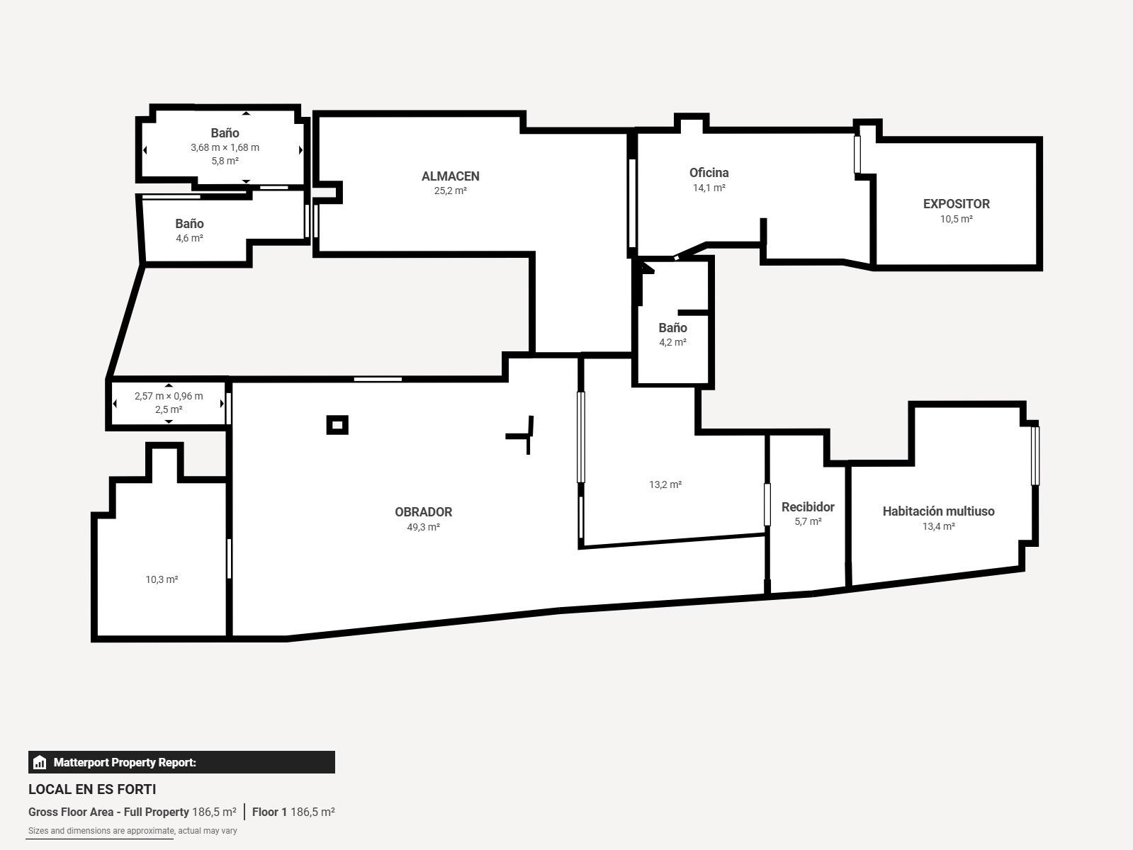
Local comercial de 202 m² construidos y 180,3 m² útiles, con licencia de actividad industrial en vigor, lo que permite su puesta en funcionamiento inmediata o la adaptación a nuevos proyectos empresariales. Oportunidad para inversión o negocio propio.
Ubicado en el barrio de El Fortí, una zona céntrica y bien comunicada de Palma. Situado en planta baja, espacio versátil con varias dependencias, acceso a pie de calle y escaparate visible. Excelentes comunicaciones con el centro y las principales avenidas de la ciudad.
Características:
- 202 m² construidos / 180,3 m² útiles.
- Distribución funcional con diferentes áreas de trabajo, almacenamiento, despacho, vestuarios y sala auxiliar con acceso independiente.
- Un baño, dos aseos y zona de vestuario para personal.
- Instalaciones eléctricas, ventilación y climatización adaptadas a normativa vigente.
- Techos altos, buena ventilación y salida de humos.
- Cerramientos de aluminio y barrera metálica enrollable.
- Posibilidad de entrega con equipamiento, según acuerdo con la propiedad.
- Apto para obrador artesanal, pequeño taller, laboratorio, coworking gastronómico, centro de producción alimentaria o actividades similares con o sin atención directa al público.
Registro ROAIIB GOIBE 792083/2024
Precio de venta 390.000€, incluye los honorarios de la agencia inmobiliaria, que van a cargo de la parte vendedora.
El precio no incluye el impuesto de ITP o IVA correspondiente, cuyo porcentaje oscila entre un 8% y un 13%, ni los gastos notariales y registrales, estimados orientativamente entre un 1,5% y un 2% sobre el precio de compra, y que deberán ser abonados al firmar la correspondiente escritura pública.
El porcentaje de los impuestos se calculan sobre el precio final de escritura pública y puede variar, en función de las subvenciones, ayudas, edad y otras circunstancias del contribuyente.

Datos

Referencia
13286/1006
Tipo
Local comercial
Ciudad
Palma de Mallorca
Zona
El Forti
Altura
0
Planta
0
CP
07011

Características

Habitaciones
0
Baños
1
Aseos
2
Antigüedad
1977
Distancia de la playa
1000 metros
Superficie útil
180.00m2
Superficie construida
202.00m2
Estado
Buen estado
Carpintería exterior
Aluminio
Carpintería interior
Madera
Orientación
Sureste
Cocina

Extras

Gas ciudad
Califcación energética Aportado
Consumo kW h/m2 Año
Emisiones Kg CO2/m2 Año
A
Más eficiente
229.1
71.3
B
C
D
E
F
G
Menos eficiente
Contacta con el agente