2 habs. 2 bañ. 91.00m2
Agencia inscrita en el Registro Oficial de Agentes de la Propiedad Inmobiliaria de las Islas Baleares. Inscripción: GOIBE731396/2024. (ROAIIB)
Luminoso, vistas despejadas y vistas al mar, zona tranquila y céntrica, a un paso de Jaime III, del Paseo Mallorca y de las Ramblas, ideal para quien ame la ciudad y quiera olvidar el coche.
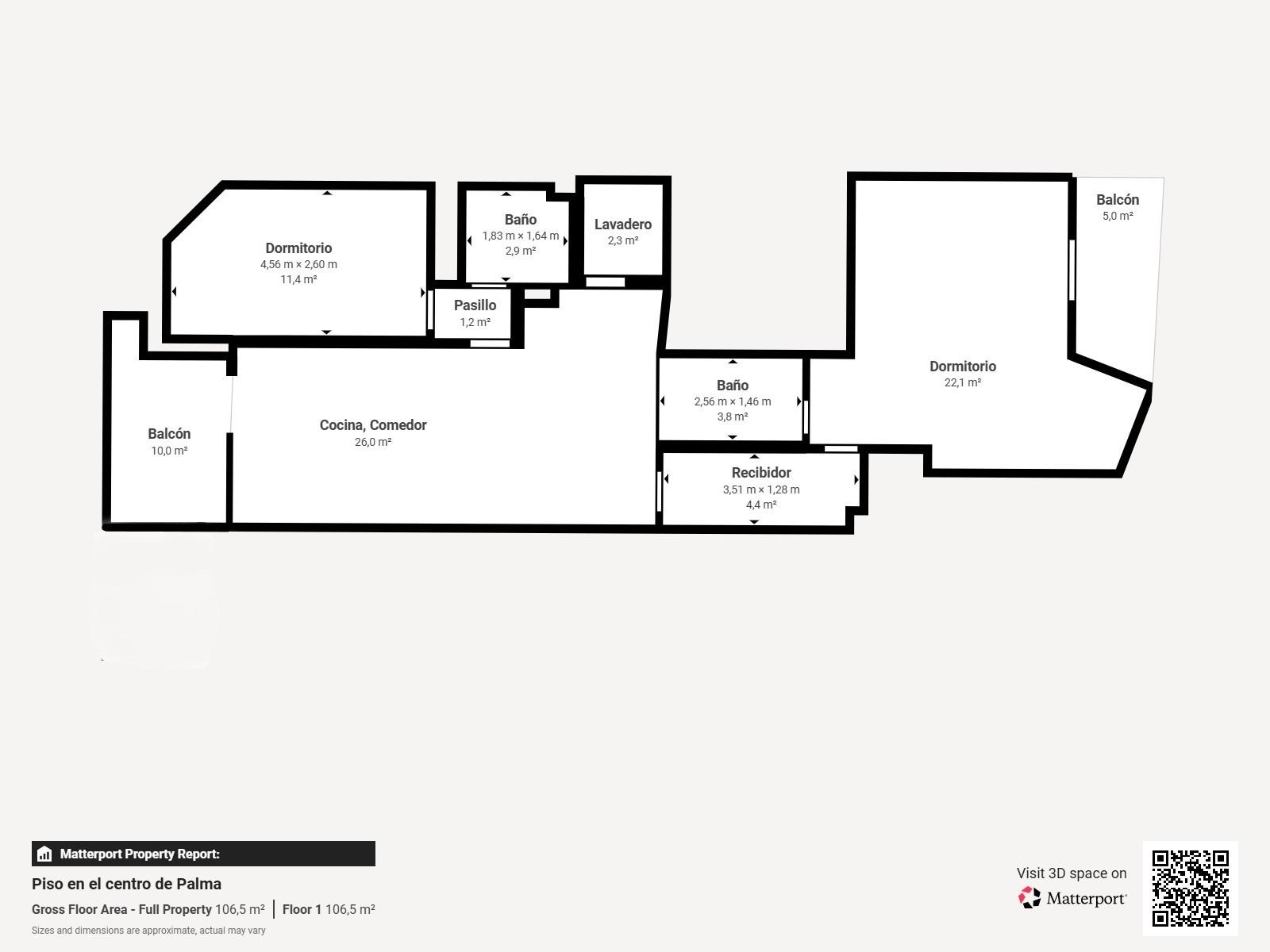
Octavo piso totalmente reformado, en un edificio adaptado para personas con movilidad reducida, con 2 ascensores y un montacargas. Distribuido en 2 habitaciones, originalmente tenía 3, dos baños, cocina abierta, salón, coladuría y terraza de unos 6m2 donde disfrutar de las bonitas vistas.
La reforma acometida ha sido completa abarcando electricidad, fontanería, baños, cocina, sistema de calefacción y preinstalación de A/C y sin olvidar suelos, cerramientos, armarios, puertas y cocina.
Listo para entrar a vivir!
No lo dudes, ven a visitarlo, te encantará.
El edificio ha pasado la Inspección Técnica de Edificios
La vivienda dispone de cédula de habitabilidad y CEE.
El precio de venta del inmueble es de 790.000€. Este importe incluye los honorarios de la agencia inmobiliaria, que serán abonados por la parte vendedora.
El precio no incluye los impuestos aplicables a la transmisión, que podrán ser el Impuesto de Transmisiones Patrimoniales (ITP), el Impuesto sobre el Valor Añadido (IVA) o el Impuesto de Actos Jurídicos Documentados (AJD), según corresponda. Estos impuestos se calculan sobre el precio final de compraventa y varían en función de las circunstancias personales del comprador —por ejemplo, la edad— y de las características de la operación —tipo de inmueble, posibles ayudas o subvenciones—.
A modo orientativo, en caso de resultar aplicable el ITP, su importe ascendería a 69.000€.
El precio tampoco incluye los gastos notariales y registrales, cuyo importe como mínimo, se sitúa en torno al 2% del precio del inmueble.
Los impuestos deberán abonarse en el momento de la compraventa en el caso del IVA, y en un plazo máximo de 30 días desde la firma de la escritura en el caso del ITP o el AJD. Los gastos notariales y registrales deberán abonarse en el momento de la recepción de la escritura pública.
Si tiene cualquier duda al respecto, no dude en contactar con nosotros.


Datos

Referencia
580/3189
Tipo
Piso
Ciudad
Palma de Mallorca
Zona
Sant Jaume
Planta
8
CP
07012

Características

Habitaciones
2
Baños
2
Antigüedad
1968
Gastos de comunidad
150€/mes
Superficie útil
82.54m2
Superficie construida
91.00m2
Estado
Reformado
Carpintería exterior
Doble Cristal
Carpintería interior
noexiste
Tipo de suelo
Cerámico

Extras

Gas ciudad
Lavanderia
Luminoso
Terraza

Entorno

Vistas al mar
Califcación energética Aportado
Consumo kW h/m2 Año
Emisiones Kg CO2/m2 Año
A
Más eficiente
B
C
D
E
113.3
24.8
F
G
Menos eficiente
Contacta con el agente