4 habs. 2 bañ. 240.00m2
Exclusiva propiedad de dos plantas con terraza privada en Son Armadams. Conjunto de 240 m² construidos: la vivienda principal en tercera planta, junto con una planta superior reformada ideal para invitados o estudio, y salida a una terraza de 65 m².
La vivienda principal, en el tercer piso, ofrece 155 m² distribuidos en dos luminosos salones de 31 y 21 m², cocina equipada con despensa y lavandería, cuatro dormitorios (tres dobles y uno simple) con armarios empotrados y dos baños completos. El edificio no dispone de ascensor, pero cuenta con silla salvaescaleras para facilitar el acceso.
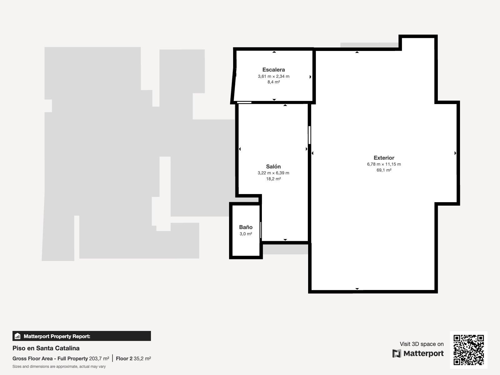
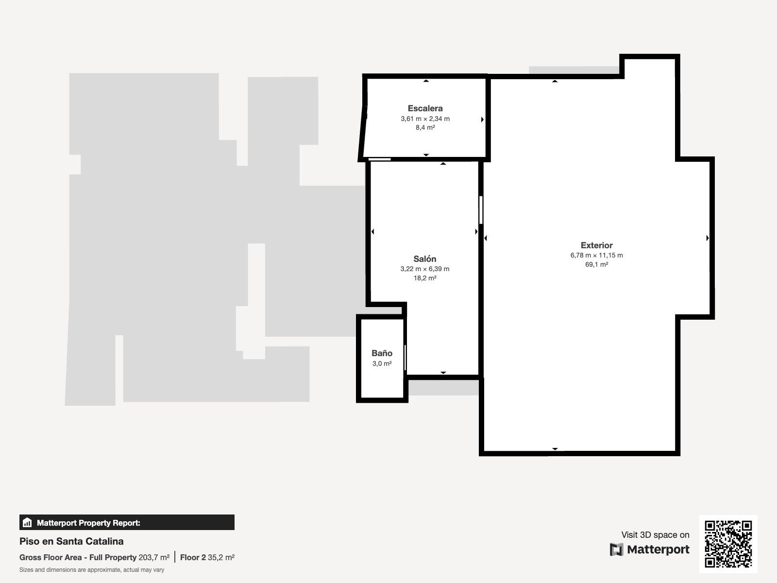
La cuarta planta, de 74 m², corresponde a los tres cuartos trasteros del título de propiedad, actualmente reformados y acondicionados como un acogedor espacio adicional con salón, cocina y baño, perfecto para recibir invitados o disfrutar como área independiente de descanso o trabajo. Esta planta ofrece un valor añadido muy práctico al conjunto.
Desde aquí se accede a la terraza privada de 65 m², ideal para relajarse, disfrutar del sol o celebrar cenas al aire libre con total privacidad.
La propiedad se encuentra en una finca de solo tres vecinos, con gastos comunitarios muy bajos (45 €/bimestre, agua incluida). El edificio cuenta con Informe de Evaluación del Edificio (IEE) favorable, 2022.
De forma opcional, existe la posibilidad de adquirir una plaza de parking de 10 m² en el edificio contiguo, apta para vehículo grande. El acceso es muy cómodo, a escasos metros de la puerta de la finca de la vivienda. La plaza dispone de escritura y nota simple independientes, lo que facilita su adquisición o venta por separado.
Vivir en Son Armadams significa estar a solo 10 minutos a pie del centro de Palma, en un entorno tranquilo y residencial, rodeado de colegios, parques, comercios y restaurantes.
No pierdas la oportunidad de disfrutar de una vivienda que combina amplitud, carácter y funcionalidad, en dos niveles con terraza privada y en una de las zonas con más proyección de Palma.
Contáctanos para más información o concertar una visita.
Precio: 845.000 €
(Plaza de parking en edificio contiguo opcional, no incluida en el precio.)
Registro ROAIIB GOIBE 792083/2024

Datos

Referencia
13264/1006
Tipo
Piso
Ciudad
Palma de Mallorca
Zona
Son Armadams
Planta
3
CP
07014

Características

Habitaciones
4
Baños
2
Salón
2
Antigüedad
1930
Distancia de la playa
500 metros
Gastos de comunidad
22€/mes
Superficie útil
155.00m2
Superficie construida
240.00m2
Superficie salón
30.00m2
Estado
Entrar a vivir
Carpintería exterior
Aluminio Climalit
Carpintería interior
Madera
Tipo de suelo
Hidráulico
Orientación
Norte Sur
Cocina

Extras

Gas ciudad
Lavanderia
Luminoso
Puerta blindada
Terraza
Trastero
Califcación energética Aportado
Consumo kW h/m2 Año
Emisiones Kg CO2/m2 Año
A
Más eficiente
B
C
D
E
F
G
Menos eficiente
187.6
58.51
Contacta con el agente