En venta
0 habs. 0 bañ. 0.00m2
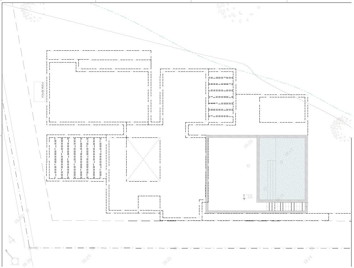
En Es Camí de Sa Ràpita, una de las zonas costeras más exclusivas de Mallorca, se encuentra a la venta este terreno cercado de 14.119 m², con licencia para construir. El proyecto contempla una vivienda moderna distribuida en varias plantas: en el sótano se ubicarán las instalaciones, mientras que la planta baja ofrece un amplio y luminoso recibidor, un salón en dos ambientes con cocina abierta y una zona de noche con dos dormitorios dobles con armarios empotrados, un baño completo y una suite principal con vestidor y baño en suite. Desde aquí se accede a un porche de 11 m² y a la piscina de 34 m². La planta superior alberga una espectacular master suite con salida a una terraza desde donde se disfrutan vistas despejadas al jardín y la piscina.
Todo esto a solo cinco minutos de la playa de Sa Ràpita, y a apenas diez minutos de Ses Covetes y la famosa playa de Es Trenc, ofreciendo una combinación única de tranquilidad, privacidad y cercanía al mar. Conseguir un terreno de más de 14.000 m² tan próximo a suelo urbano es prácticamente imposible, lo que convierte esta propiedad en una oportunidad única para crear tu hogar soñado o para promotores en busca de un proyecto con gran potencial.

Datos

Referencia
P2TO189/3207
Tipo
Solar
Ciudad
Campos
Zona
San garau
Planta
0
CP
07639

Características

Habitaciones
0
Distancia de la playa
1400 metros
Superficie parcela
14199m2
Estado
Ninguno

Extras

Califcación energética En trámites
Consumo kW h/m2 Año
Emisiones Kg CO2/m2 Año
A
Más eficiente
B
C
D
E
F
G
Menos eficiente
Contacta con el agente