En venta
2 habs. 3 bañ. 121.00m2
Ref JS1218
Bienvenidos a esta confortable casa de dos plantas construida completamente nueva en 2003
La Casa consta de dos plantas con un total de 121m2 construidos en una parcela de 83m2 de la la siguiente forma.
Planta baja con 67m2 distribuidos en: Garage de 14m2, recibidor, aseo/lavandería, almacén (hoy es una habitación simple con armario empotrado, sin ventilación), salon/comedor de 25m2, cocina independiente de unos 6m2 y un acogedor patio de 15m2, donde tambien contamos con un antiguo aljibe reformado para almacenamiento.
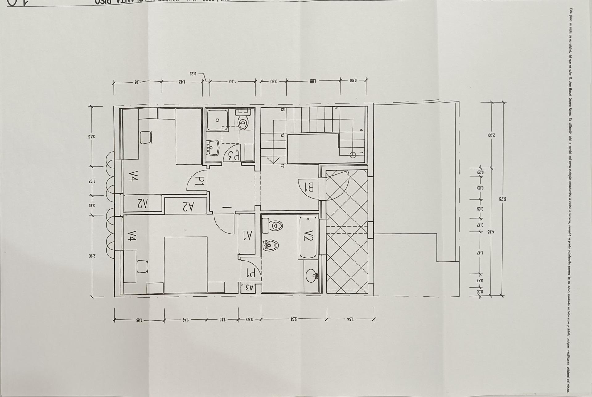
Planta Piso de 51m2 distribuidos en dos Habitaciones dobles; ambas con baño en suite, una habitación de estudio y una terraza con vistas despejadas de unos 6m2. Además cuenta con un altillo de 40m2 aproximadamente .
La casa fue completamente construida en 2003 con materiales de excelente calidades, con sus respectivas licencias y permisos de obra, recientemente pintada en su interior y además se instalo nueva iluminación led. Dispone de persianas de aluminio, ventanas con climalit y consta con vado del ayuntamiento, cedula de habitabilidad y certificado energético.
Ubicada en el centro de Porto Cristo y al alcance de todos los servicios disponible; Supermercados, Hospital, tiendas, Bus y Playa; es esta una propuesta inmejorable si buscas una casa para entrar a vivir.
Contactanos para mas información y concertar una visita

Datos

Referencia
JS1218/3409
Tipo
Adosado
Ciudad
Manacor
Zona
Porto Cristo
Planta
1
CP
07680

Características

Habitaciones
2
Baños
2
Aseos
1
Salón
1
Antigüedad
2003
Distancia de la playa
600 metros
IBI
348
Superficie útil
112.00m2
Superficie construida
121.00m2
Superficie parcela
82m2
Superficie salón
15.00m2
Estado
Seminuevo
Carpintería exterior
Aluminio Climalit
Carpintería interior
Madera
Tipo de suelo
noexiste
Orientación
Este
Cocina

Extras

Garaje
Jardín
Lavanderia
Luminoso
Terraza
Califcación energética Aportado
Consumo kW h/m2 Año
Emisiones Kg CO2/m2 Año
A
Más eficiente
B
C
D
E
114.9
29.5
F
G
Menos eficiente
Contacta con el agente