0 habs. 0 bañ. 413.00m2
En Son Gual, uno de los enclaves residenciales de mayor proyección en las afueras de Palma, este solar de 2.021 m² ofrece algo cada vez más difícil de encontrar: vistas panorámicas a la bahía garantizadas, frente a una zona verde protegida que preserva el horizonte de cualquier futura edificación.
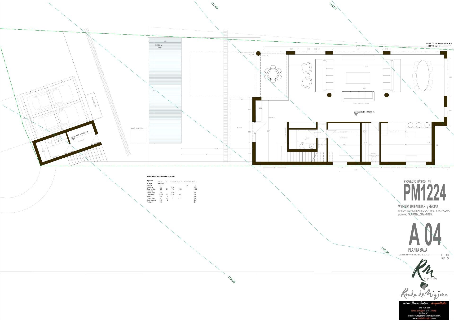
El proyecto está listo para construir. Se entregan proyecto básico, proyecto de ejecución ya presentado, proyecto de interiorismo y licencia de obras para una vivienda unifamiliar de 340 m² con cuatro dormitorios, cuatro baños, piscina y zona de barbacoa cubierta con pergolado y baño exterior. El volumen actual de 1.158 m³ puede ampliarse hasta los 2.021 m³ permitidos por el planeamiento, con posibilidad de añadir una planta adicional y sótano. La entrega de la vivienda totalmente terminada es también una opción disponible.
Son Gual combina la privacidad y la quietud del entorno natural con una conexión ágil al centro de Palma, y se ha consolidado como una de las zonas de mayor demanda para vivienda de alto standing en Mallorca. Un solar con todas las condiciones resueltas para quien busca construir sin esperas ni incertidumbre.
El precio indicado no incluye el 21 % de IVA, ni los gastos de notaría y registro, estimados orientativamente en un 2 % del valor de la compraventa, a cargo del comprador. Los honorarios de agencia son íntegramente a cargo del vendedor. Las imágenes son renders orientativos sin valor contractual.
Inmobiliaria Inscrita en el Registre Oficial de Agents Immobiliaris de les Illes Balears con el NUMERO REGISTRO: GOIBE747077/2024

Datos

Referencia
02444/3011
Tipo
Terreno urbano
Ciudad
Palma de Mallorca
Zona
Son Gual
Planta
0
CP
07199

Características

Habitaciones
0
Antigüedad
2022
Superficie construida
413.00m2
Superficie parcela
2021m2
Estado
Ninguno

Extras

Entorno

Urbanización
Vistas al mar
Califcación energética En trámites
Consumo kW h/m2 Año
Emisiones Kg CO2/m2 Año
A
Más eficiente
B
C
D
E
F
G
Menos eficiente
Contacta con el agente