Sale, New construction
4 bd. 5 ba. 290m2
Just 5 minutes from the charming town of Art, on a plot of over 31,000 m, lies this unique property that combines tradition, nature, and modern design. What was once a historic dairy farm has now become the dream home of countryside lovers.
This newly built 290 m single-level villa offers breathtaking views of the surrounding natural landscape and the iconic Sant Salvador Monastery, beautifully illuminated at night.
The property has been designed with comfort, elegance, and functionality in mind:
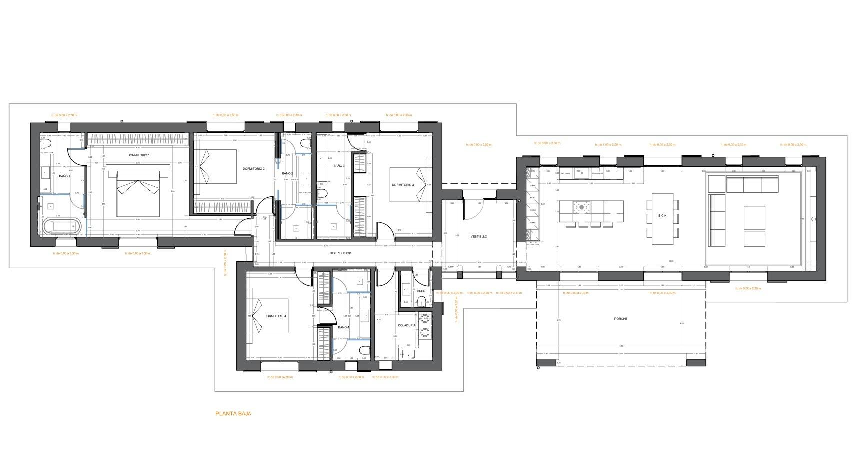
- A spacious living-dining area with differentiated ambiences and direct access to the outdoors on both sides.
- A fully equipped designer open kitchen.
- 4 large exterior en-suite bedrooms, all with direct outdoor access, fitted wardrobes, and stylish bathrooms.
- A spectacular entrance hall featuring a striking glass faade overlooking Sant Salvador.
The home will achieve an A energy rating, thanks to excellent insulation, a natural stone faade, and high-quality climalit aluminum enclosures.
Premium Features:
- Private swimming pool
- Hot/cold air conditioning
- Underfloor heating
- Solar panels aerothermal system
- High-end finishes (Hansgrohe taps, Inari bathtub, Vonn Light flooring)
- Anti-slip exterior paving
- Elegant walnut carpentry and concealed black hinges
- Bespoke wardrobes with textile melamine interiors, rattan inserts integrated LED lighting
- Designer furniture included
The estate will be delivered fully landscaped, including a licensed vineyard. Additionally, the plot allows for an extension of approx. 140 m, either as an annex to the villa or as a separate guest house.
A true haven to enjoy and relax, just minutes from Cala Torta, one of Europe?s most highly rated beaches, 5 minutes from Art, and only 11 km from Cala Ratjada.

Information

Reference
P2TO192
Kind of property
Fincas y solares
City
Artà
Zone
Artà
Plant
0
Postal code
07570

Characteristics

Bedrooms
4
Bathrooms
4
Toilets
1
Antiquity
2025
Builded surface
290m2
Plot area
31475m2
State
Obra Nueva
Orientation
Sur

Features

Heating
Terrace
Energy rating In process
Consumption kW h/m2 Year
Emissions Kg CO2/m2 Year
A
More efficient
B
C
D
E
F
G
Less efficient
Contact the agent