Sale
2 bd. 2 ba. 76m2
PALMA- SON FORTEZA - CALLE OSCA. Buscas una vivienda pero te da pereza hacer reformas? Es tu oportunidad!!

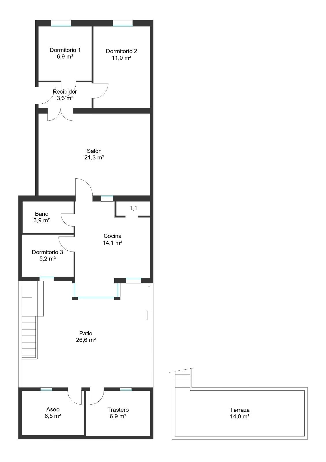
Se vende bonita planta baja de 76 m2 para entrar a vivir! Consta de 3 habitaciones, 1 bao completo con baera, cocina amueblada e independiente con prctica despensa y saln comedor con aire acondicionado fro- calor.
Desde la cocina tenemos acceso a un fantstico patio interior que nos da acceso una estancia que se puede aprovechar como trastero, sala de juegos, zona de estudio, etc y otra habitacin que a da de hoy se emplea como zona de coladura y aseo exterior.
Desde el mismo patio, mediante unas escaleras, tenemos acceso a una terraza tipo solarium
Entre otras calidades, la propiedad posee solados de gres rstico, aire acondicionado fro- calor en el recibidor, termo de butano, carpintera interior de madera y exterior de aluminio con climalit.
La finca es tranquila ya que tiene pocos vecinos y lo mejor es que no hay gastos comunitarios! Todos los contadores son individuales, brindndote total independencia sobre tus suministros.
Precio: 360.000 euros.

Information

Reference
02377
Kind of property
Pisos
City
Palma de Mallorca
Zone
Son Forteza
Plant
0
Postal code
07005

Characteristics

Bedrooms
2
Bathrooms
1
Toilets
1
Antiquity
1960
Useful surface
70m2
Builded surface
76m2
Terrace area
14m2
State
Buen estado

Features

Heating
Terrace
Storage room
Energy rating Contributed
Consumption kW h/m2 Year
Emissions Kg CO2/m2 Year
A
More efficient
B
C
D
E
F
206.9
56.5
G
Less efficient
Contact the agent