Sale
4 bd. 2 ba. 158m2
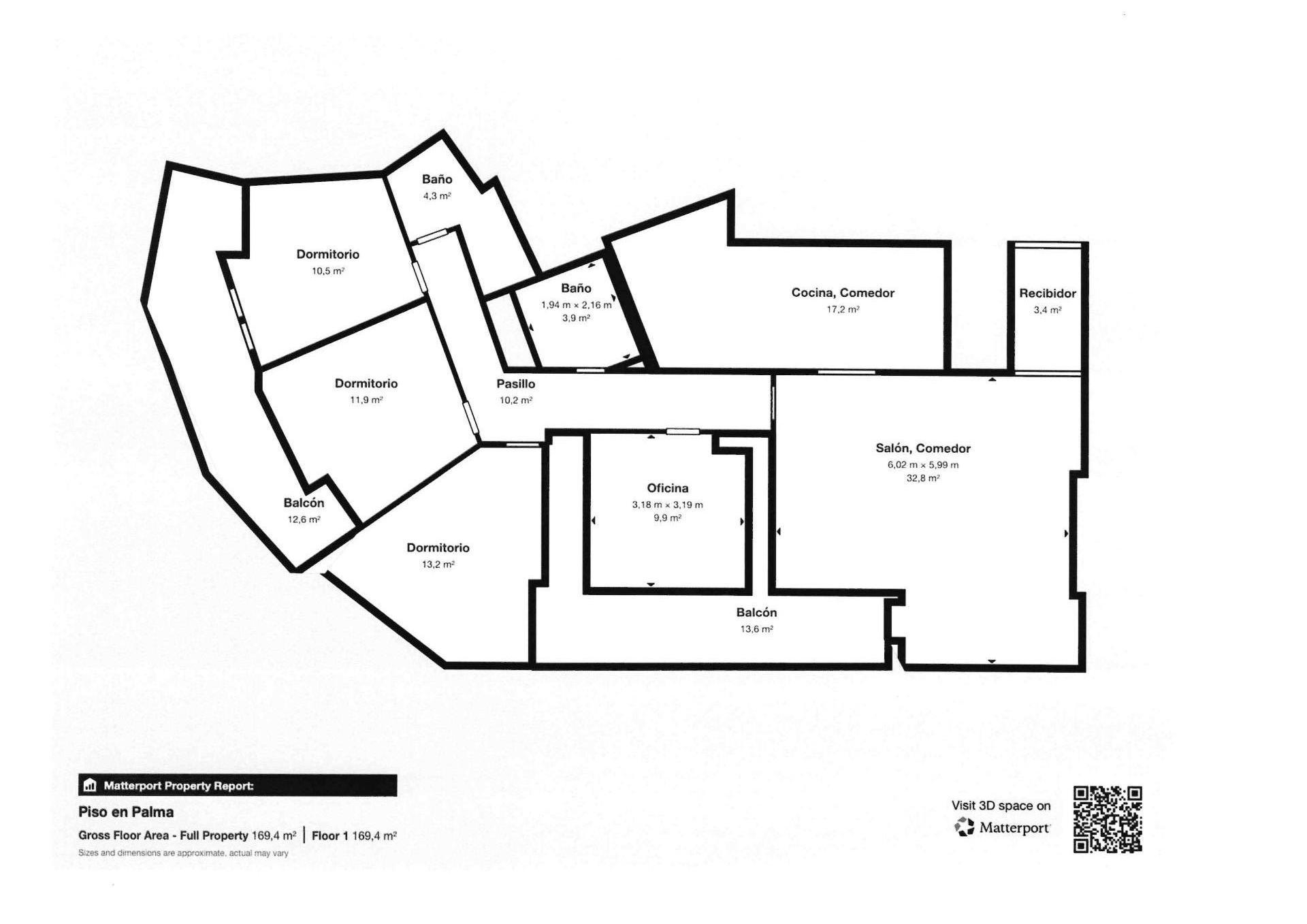
Te invitamos a descubrir este impresionante piso en la codiciada zona de Avenidas, una de las zonas ms prestigiosas de Palma con todos los servicios y necesidades a tu disposicin. Con 158 m construidos (147 m tiles), destaca por su amplitud, encanto y homogeneidad, as como la luz natural que inunda todos los rincones de la vivienda. Los espacios abiertos y despejados, crean una sensacin de confort y comodidad abundantes. Adems, cuenta con una reforma integrada llevada a cabo en el ao 2017 con materiales de alta calidad, lo cual aporta un toque moderno y sofisticado.
El inmueble est estratgicamente distribuido en cuatro habitaciones dobles bien iluminadas, ideales para familias o para quienes buscan espacio adicional, con armarios empotrados en todas las habitaciones, para optimizar el espacio. Cuenta tambin con dos baos completos, uno de ellos en suite con ducha y otro para invitados con baera. Dispone tambin de zona de coladura, con lavadora y secadora, as como una pila para lavar a mano las prendas ms delicadas.
En cuanto al recibidor, gracias a su diseo funcional, brinda un mejor aprovechamiento del espacio, junto con el saln-comedor, de generosos 35 m, resulta una combinacin perfecta tanto para organizar entretenidas reuniones familiares como para disfrutar esos codiciados momentos de relax al final de da. Sin dejar de lado la cocina office totalmente equipada, con una amplitud aproximada de 17 m, para ofrecer un entorno cmodo y funcional a la hora de preparar tus platos favoritos.
La vivienda dispone de acceso a 2 balcones que envuelven la fachada de la vivienda, con acceso tanto desde el comedor como desde las habitaciones, lo cual permite aprovechar plenamente el agradable clima mediterrneo durante todo el ao.
Entre sus destacables caractersticas podemos aadir:
-Ventanas exteriores de aluminio con climalit doble, que aportan abundante luz natural y una mxima insonorizacin.
-Puerta blindada de seguridad para garantizar el bienestar y tranquilidad de toda la familia.
-Aire acondicionado central en 2 habitaciones y comedor, para repartir el fro/calor de forma homognea.
-Descalcificador para optimizar la calidad del agua.
-Pre instalaciones de televisin en todas las habitaciones para que nadie se aburra en casa.
-Entorno agradable y seguro para vivir sin preocupaciones aadidas.
-Opcin de adquirir plaza de aparcamiento privada.
La ubicacin es inmejorable: en pleno centro de Palma, bien comunicada por transporte pblico, con autobuses cercanos, centros comerciales, colegios pblicos y privados, y hospitales a poca distancia. Adems, el barrio dispone de zonas infantiles y espacios tranquilos ideales para familias.
En resumen, este piso ofrece una combinacin perfecta de espacio, confort y ubicacin privilegiada, convirtindose en una oportunidad nica para disfrutar de una vida de ensueo en Palma de Mallorca.
? Precio vivienda:799.500 euros / Parking (opcional): 35.000 euros.
? Contctanos para ms informacin o concertar una visita!
? 971 60 11 99
?info@amginmobiliaria.com
? www.amginmobiliaria.com

GOIBE729688/2024

Information

Reference
E-0470
Kind of property
Pisos
City
Palma de Mallorca
Zone
Centro
Plant
4
Postal code
07006

Characteristics

Bedrooms
4
Bathrooms
2
Antiquity
1969
Community fees
100€/month
Useful surface
147m2
Builded surface
158m2
Terrace area
12m2
State
Buen estado

Features

Elevator
Balcony
Heating
Energy rating Contributed
Consumption kW h/m2 Year
Emissions Kg CO2/m2 Year
A
More efficient
B
C
D
E
F
G
Less efficient
133
35
Contact the agent