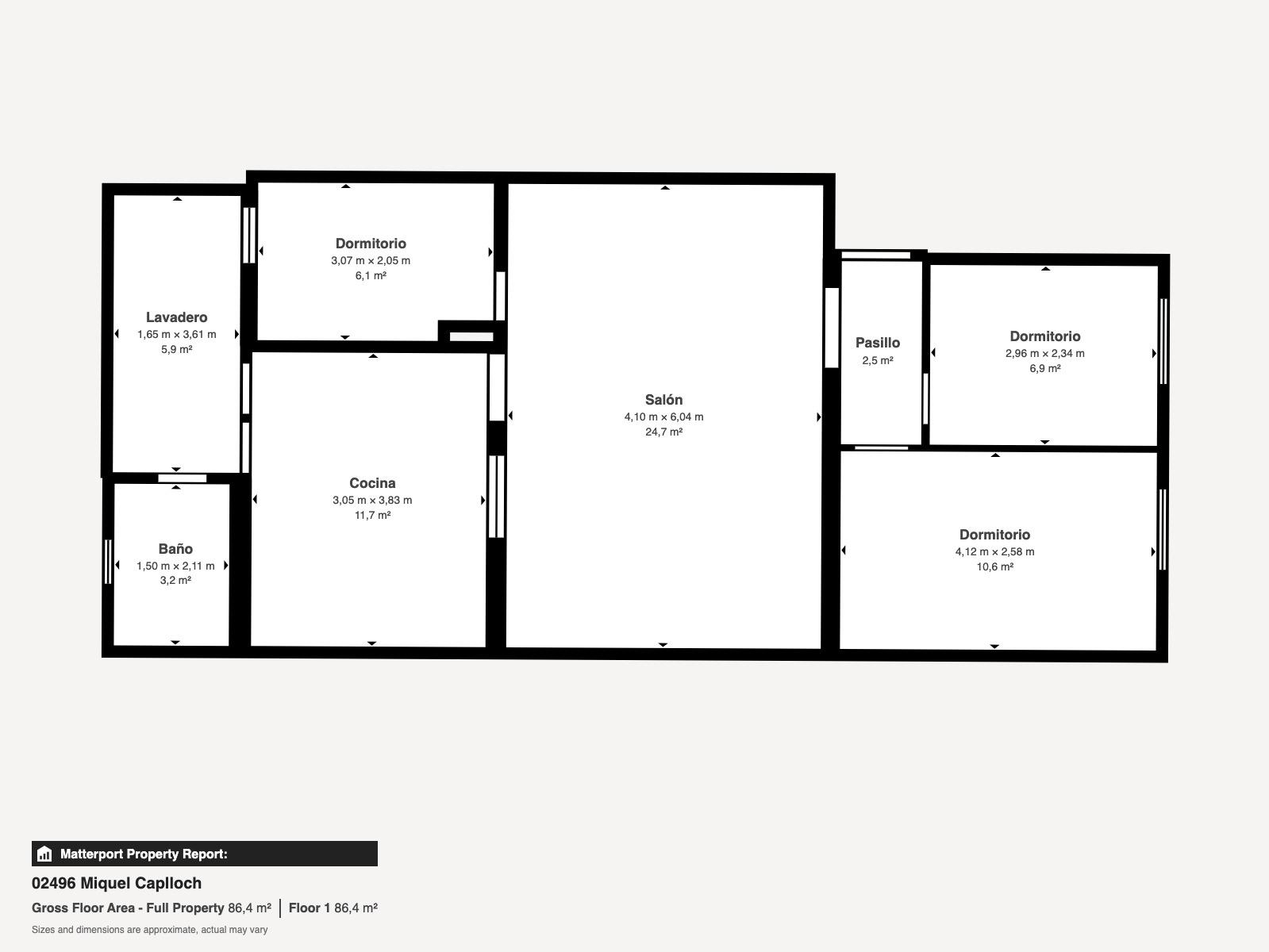
3 bd. 1 ba. 82.00m2

Are you looking to stop paying rent and start your own story? This third-floor apartment is the perfect blank canvas for those seeking light, comfort, and a strategic location. Situated on the border between Cas Capiscol and Camp Redó, you’ll have everything at your doorstep: from shopping at Carrefour and leisure at Ocimax to medical centers, schools, and quick connections to the Vía de Cintura and Palma city center.
What you’ll love about your new home:
Abundant Light: Say goodbye to dark apartments. Thanks to its skylights and top-floor position, the living room is a burst of natural light.
Year-round Comfort: Enjoy cozy winters by the fireplace in the living room and cool summers thanks to the ceiling fans and split air conditioning system.
Quality of Life: 3 bedrooms ideal for remote work or starting a family, an equipped kitchen, and PVC Climalit windows to keep city noise out and energy savings in.
What about the 3rd floor without an elevator? Look at it this way: it’s your daily "private gym" to keep you fit without the fees. Plus, living on the top floor guarantees quieter neighbors (no one walking over your head) and, best of all, very low community fees! It’s the smart investment to start your journey.
The indicated sale price does not include the Property Transfer Tax (ITP), which will be approximately 8%, nor the notary and registry fees, estimated at approximately 2% of the sale value, which must be paid by the buyer upon signing the corresponding public deed. The amount of taxes is calculated based on the final price stated in the public deed and may vary depending on applicable regulations, as well as subsidies, grants, age, and other personal circumstances of the taxpayer.
The real estate agency fees will be fully covered by the seller, representing no cost to the buyer.
Real Estate Agency registered in the Official Register of Real Estate Agents of the Balearic Islands with REGISTRATION NUMBER: GOIBE747077/2024

Information

Reference
02496/3011
Kind of property
Piso
City
Palma de Mallorca
Zone
Cas Capiscol
Plant
3
Postal code
07010

Characteristics

Bedrooms
3
Bathrooms
1
Antiquity
1961
Useful surface
72.00m2
Builded surface
82.00m2
State
Buen estado
External woodwork
PVC Climalit
Interior carpentry
noexiste
Type of soil
Tarima Flotante
Orientation
Sur
Kitchen

Features

Energy rating Contributed
Consumption kW h/m2 Year
Emissions Kg CO2/m2 Year
A
More efficient
B
C
D
E
183.1
F
54.8
G
Less efficient
Contact the agent